 
         24小時服務熱線
                    15311826765
24小時服務熱線
                    15311826765
                 添加微信
                    13811510145
添加微信
                    13811510145
                 公司地址
公司地址
                    山東省煙臺市福山高新技術產業區鑫海街188號
 
 
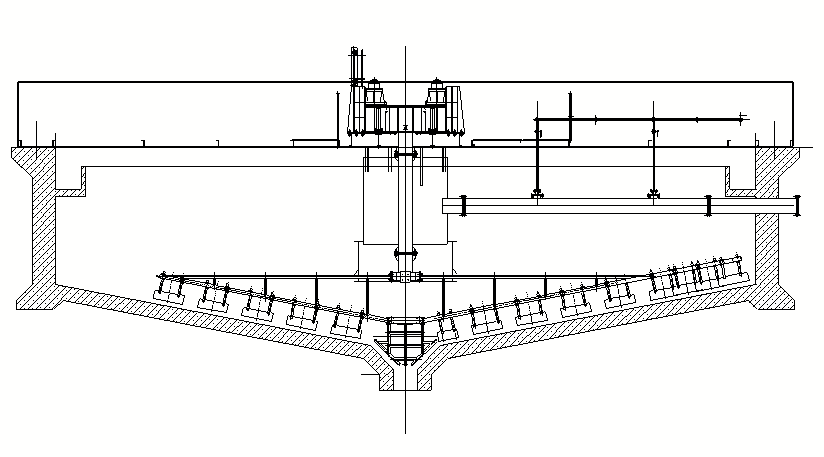
            產品簡介:一款中心液壓傳動、液壓自動提耙的濃密機。
處理能力:28~1590 m<sup>2</sup>
產品改進:內徑可達100M
優勢特點:
	 
 
安裝維修簡單、方便。
內部構造簡潔,便于液壓、電控系統等件的布置。
可通過調節油泵的排油量,來調節耙架的轉速,以達到最佳狀態。
可實現自動提耙、降耙。
 
 
	液壓馬達傳動中心濃密機主要是由傳動裝置、橋架、加藥裝置、入料管、固定筒、布料筒、刮板、軸、長耙、短耙、吊桿、電控裝置、液壓站、維修用吊架等組成。
	 
 
1、液壓馬達傳動中心濃密機的壓力不足或無壓力的原因是什么?
(1)溢流閥的調整不當或是溢流閥損壞造成的的壓力不足或無壓,需重新調整溢流閥或跟換溢流閥。
(2)油泵過熱,導致油泵磨損、損壞,又或是油泵的粘度過低造成,需修理、更換油泵,或是使用推薦粘度的液壓軸。
2、機械振動的原因是什么?
電機和油泵不同軸或是管道振動引起的機械振動,可通過調整同軸度或緊固加裝管卡來改善振動問題。
液壓馬達傳動中心濃密機技術參數表
| 型號 | 濃縮池內徑m | 池中心深度m | 沉淀面積m2 | 耙架每轉時間min/r | 提耙高度mm | 處理量t/d | 驅動功率kW | 
| NZY-6 | 6 | 3.0~3.2 | 28 | 2.5~5.0 | 350 | 50~100 | 3 | 
| NZY-9 | 9 | 3.5~3.8 | 63.6 | 3.0~5.0 | 350 | 120~175 | 3 | 
| NZY-12 | 12 | 3.5~3.8 | 113 | 4.0~7.0 | 350 | 200~300 | 4 | 
| NZY-15 | 15 | 4.0~4.5 | 176 | 5.0~10.0 | 450 | 350~400 | 5.5 | 
| NZY-18 | 18 | 4.0~4.5 | 254 | 8.0~12.0 | 450 | 600~800 | 5.5 | 
| NZY-20 | 20 | 4.0~4.5 | 314 | 8.0~12.0 | 450 | 800~1000 | 7.5 | 
| NZY-24 | 24 | 4.5~5.5 | 450 | 9.0~12.0 | 450 | 1000~1300 | 7.5 | 
| NZY-30 | 30 | 4.5~5.5 | 706 | 10.0~14.0 | 450 | 1500~1800 | 11 | 
| NZY-38 | 38 | 6.5~8.0 | 1134 | 15.0~22.0 | 600 | 1800~2200 | 15 | 
| NZY-40 | 40 | 6.5~8.0 | 1256 | 15.0~22.0 | 600 | 2200~2400 | 15 | 
| NZY-45 | 45 | 6.5~8.0 | 1590 | 15.0~22.0 | 600 | 2400~2800 | 15 | 
| NZY-53 | 53 | 6.5~8.0 | 2206 | 15.0~22.0 | 600 | 3000~3500 | 15 | 
| NZY-60 | 60 | 7.0~8.5 | 2827 | 16.0~50.0 | 600 | 3500~5000 | 18.5 | 
| NZY-75 | 75 | 8.0~10.0 | 4418 | 20.0~80.0 | 800 | 7500~10000 | 22 | 
| NZY-100 | 100 | 8.0~10.0 | 7853 | 35.0~80.0 | 800 | 10000~15000 | 30 |